茅ヶ崎市 猫可 賃貸|茅ヶ崎駅徒歩圏・築浅メゾネット|床暖房完備の希少物件【イーストコーストⅡ】
「茅ヶ崎の海風を感じる暮らし。ペットと一緒に快適なメゾネットライフを。」
🏡 物件概要書:イーストコーストⅡ 201号室
📍所在地
- 神奈川県茅ヶ崎市東海岸南2丁目4-39
- 東海道線「茅ケ崎」駅 徒歩13分(約1,002m)
💰賃料・初期費用
- 賃料:143,000円
- 敷金:1ヶ月
- 礼金:1ヶ月
- 管理費・共益費:なし
- 更新料:新賃料の1ヶ月分
- 駐車場:空有(10,000円/月)
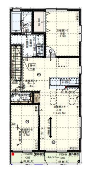
📐面積・間取り
- 使用部分面積:62.46㎡(壁芯)
- バルコニー面積:4.96㎡(南向き)
- 間取り:2LDK(メゾネットタイプ)
🏗️建物情報
- 築年月:2023年3月(令和5年)
- 構造:木造2階建て
- 所在階:1階
- オール電化・外観タイル張り
🛋️設備・特徴
- 床暖房(冬季費用不要)
- システムキッチン(IH・食洗機付き)
- 書棚付きリビング(一条工務店純正)
- バス・トイレ別、追焚機能、洗面台、室内洗濯機置場
- 猫可・ペット可・楽器相談可・事務所使用可・二人入居可
- モニター付きインターホン、複層ガラス、駐輪場・バイク置き場
🏥近隣の動物病院
三毛猫ホームズでは、猫可の新着物件を多数掲載中!
▶ 神奈川県の猫可物件一覧を見る
物件概要
設備仕様
周辺地図
条件の近い物件
【猫可・湘南台】猫と暮らせる1K賃貸|礼金無し|南向き・最上階・駐車場あり











